新闻动态
53平的小户型装修效果图 卧室做个飘窗地台安逸
时间:2020-01-08 13:04 浏览次数:今天寻意空间小编来给大家分享的是一套建筑面积53平米的原木风小户型单身公寓案例,整个房子的格局比较端正,虽然整体布局紧凑,却不会让人觉得太过拥挤。厨房、卧室都是独立的空间,对于小户型单身公寓来说,也是很多屋主所羡慕的事情。

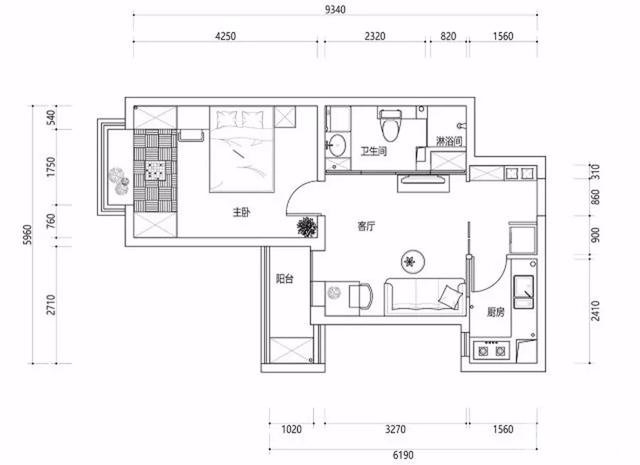
平面布置图

入户玄关走廊内做了到顶的鞋柜,在鞋柜的边上留出部分的空间摆放换鞋凳和挂衣钩,这样整体使用会方便很多,又不会缺少储物空间。

厨房就在玄关走廊的边上,整体是一个狭长的形状,设计师做了L形橱柜布局方案,让厨房不会太过拥挤,又能拥有足够的储物空间。

厨房和客厅之间做了一部分的玻璃隔断,这样可以让光线流通起来。迷你的小书房和餐桌、茶几塞进了这个客餐厅合一的空间。

整个客餐厅的家具尺寸也比较迷你,这也是因为客餐厅作为中转点,连通了家里的各个空间。比如卧室、卫生间、阳台、玄关,家具选择大尺寸的,就不方便通行了。

靠着阳台的角落里摆放了一张小餐桌,餐椅也可以塞进餐桌的下方,平时一两个人吃饭,就可以不用搬动餐桌了,还能欣赏一下窗外的美景。

客厅的电视背景墙后方是一个暗卫,所以设计师做了创意的格栅门设计,既能起到装饰的效果,又让卫生间变得更加明亮,日式的格栅门很符合原木风的感觉。

主卧室的空间还是比较宽敞的,摆放了双人床加上床头柜和小书桌,靠着窗户的地方做上一个飘窗地台,整个空间的配色简单又舒适。

这个飘窗地台也是屋主用来招待朋友的好地方,每次朋友来他家玩的时候,都喜欢躺在这里看书、玩游戏,搭配上飘窗几也可以起到茶室的作用。

卫生间内除了淋浴房和马桶、洗手台之外,设计师还把洗衣机也整合进了这个空间,这样洗衣机的上下水可以和洗手台结合,可以防止污染,也避免额外更改水路。


