新闻动态
长沙家装效果图28平老房 把床抬高 空间扩容一倍
时间:2020-01-17 13:04 浏览次数:寻意空间今天分享的是一套建筑面积28平米的小户型老房改造案例,房子位于长沙,也是一楼的小户型,有个小院子,设计师为了整个家能够宽敞一些,选择了把床抬高的设计,合理的利用了3.6米的层高,让人羡慕不已。

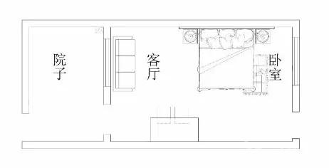
平面布置图

入户玄关和院子连通起来,设计师选择用玻璃隔断代替墙体,可以让这个空间看起来更不会拥挤,在这里摆放上绿植,也显得更加舒适。

这个小庭院被设计师装上了玻璃吊顶,然后作为餐厅来使用,平时和朋友在这里聚餐也不错,电视被放在了餐厅的边上,还搭配了长隔板作为收纳。

走过庭院就到了客厅空间,简单的浅灰色布艺沙发搭配上简洁的茶几和地毯,沙发背景墙选择了大面积留空的设计,让整个家看起来更加简约大方。

在客厅的另一侧是选择了刷成浅灰色的设计,搭配上置物架、衣柜和绿植,可以说是把整个空间的收纳和装饰放在了一起。

厨房这个空间位于卧室的下方,而且还做了下沉式的设计,这样卧室就不会让人觉得太矮。L形的橱柜布局方案,满足了屋主的收纳需求,也不会显得太挤。

二楼抬高的这部分其实比较窄一些,所以设计师也只是做了部分抬高的地台搭配一张床垫,床头柜用小推车代替,显得更为灵活。

卧室上方的假梁吊顶一直延伸到了客厅处,让整体感变得更强。屋主购买了一个遮光窗帘放在卧室的床尾,可以起到保证隐私的效果,也不会早上被晒醒。

卫生间实在客厅和厨房的边上,整体是一个长条形的格局,洗手台和马桶上方做了大面积的浴室镜,让整个卫生间的空间视觉感得以延伸。

而淋浴区是被放在了卫生间的里面,用玻璃门作为隔断。整个卫生间的配色以白色为主,搭配灰色的地砖,看起来更加简洁大方。


